Fertigfundamente aus Beton

Wir produzieren Fertigfundamente für Masten, Schilder, Sockel, E-Ladesäulen, Leuchtfeuer oder die Vermessung...

Mönninghoff-Sockelfundament aus Beton

Fundamente

Fertigfundamente aus Beton

Mönninghoff fertigt Beton-Fundamente für unterschiedlichste Anwendungen wie z.B. Ladesäulensockel, Batteriespeicherfundamente, Schilderfundamente, Leitpfostenfundamente, Anprallsockel, Radabweiser sowie Fertigfundamente. 

Vorgefertigte Betonfundamente können kundenspezifisch in Einzel-, Klein- oder Großserien hergestellt werden. Verwendung finden die Fundamente beispielsweise im Straßenbau für Masten, Schilder, Sockel und / oder Säulen.

Vorteile von Beton-Fertigfundamenten

Die Fundamente können nach Kundenvorgabe mit Einbauteilen wie Kabelleerrohren, Schraubhülsen, Gewindeankern, Erdungsanschlüssen, Aussparungen und Transportanker passgenau gefertigt werden. 

Eine große Nachfrage besteht zur Zeit an Sockeln und Fundamenten für elektrische Ladesäulen die Elektro- und Hybridautos, sowie Pedelecs und Elektrofahrräder zum Aufladen dienen. Sie werden für zahlreiche Elektrotankstellenhersteller produziert.

So entfällt ein aufwendiges Anrühren von Ortbeton in Kleinstmengen, welches die Bauzeit auf der Baustelle verkürzt. Fundamente mit angeformten sichtbaren Sockeln, können unter Berücksichtigung aller geforderten Expositions-und Betonfestigkeitsklassen, auch in höchsten Sichtbetoneigenschaften hergestellt werden. Die technische Bearbeitung wie das Erstellen der Übersichtspläne inkl. aller, vom Kunden gewünschten, Einbauteile und der Bewehrungspläne wird bei uns zeitnah angefertigt.

Die statische Bemessung in Form von Gleit- und Kippsicherungsnachweisen, Sohlspannungsnachweis und der Ankerbemessung kann, unter Verwendung der aktuellen Normen, berechnet werden. Lieferungen, auch von kleinsten Mengen, können umgehend direkt zur Baustelle geliefert und auf Wunsch auch abgeladen werden.

Nachfolgend erhalten Sie technische Daten, Ausschreibungstexte und sonstige Informationen zu unseren Fundamenten als Download.

Sockel für Fahrkartenautomaten
Fahrkartenautomatensockel
Fertigfundamente
für Leuchten-, Ampel-, Schilder-, Parkuhren-und Fahnenmasten
Radabweiser
Radabweiser
Schilder - und Leitpfostenfundamente
Schilderfundamente
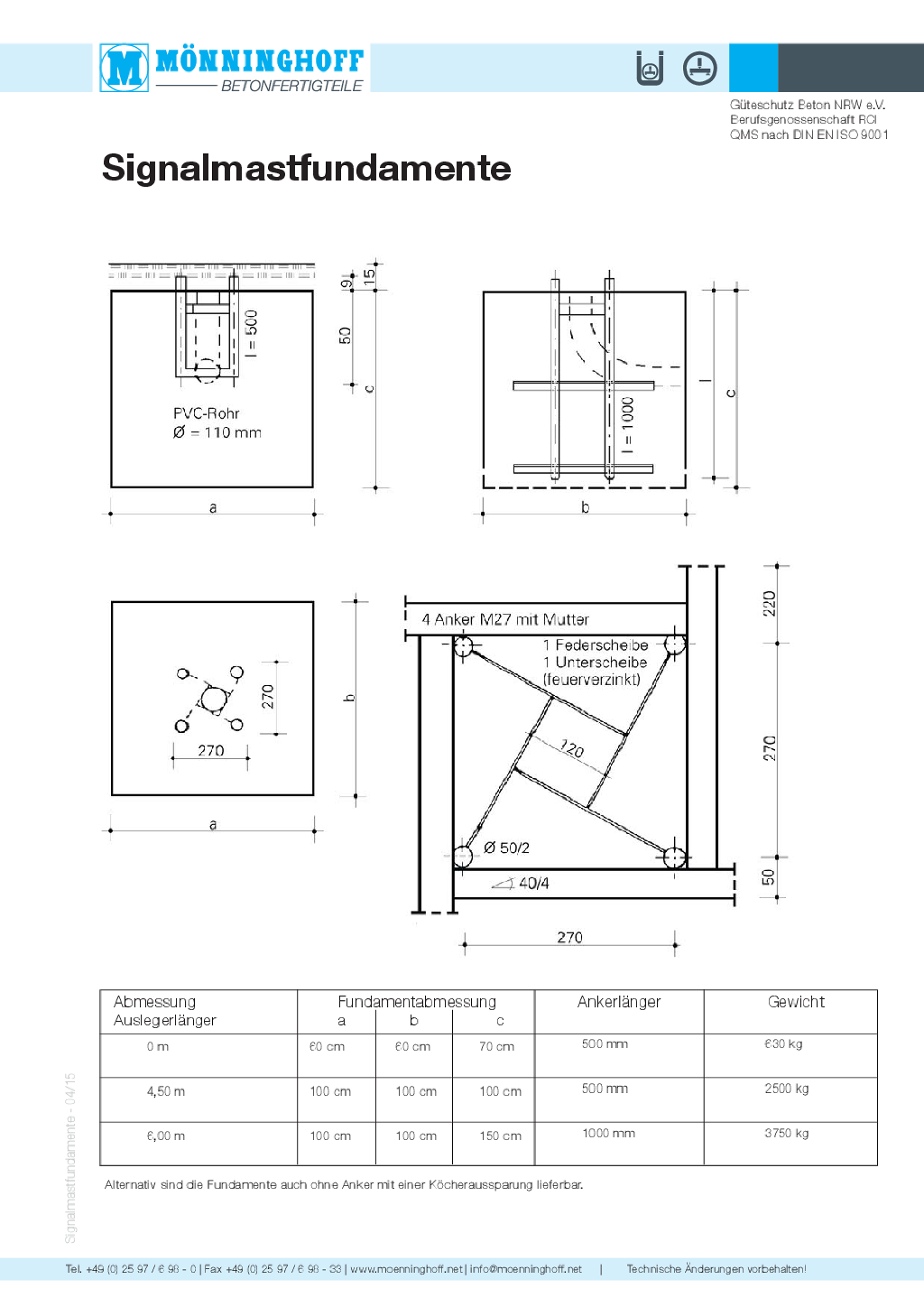
Signalmastfundamente
Fundament für Signalmasten
Produktinformationsblätter (PDF)
  1. Signalmastfundamente
Vermessungspfeiler
Vermessungspfeiler
Nach oben